top of page
.png)

Interior & Exterior Ground Photography
A catalog of photos, capturing the very best of your property's interior and exterior. I use HDR bracketing to create brighter, sharper photos.

Aerial Photography
Capture a completely different perspective of your property from above. Aerial photography is a great way to show properties with larger gardens and plots of land.

Video
Capture your home using high definition 4K cinematic video paired with fully licensed music tracks to create a truly unique piece of marketing content. Video can include 4K aerial footage, showing the surrounding area and plot size.

Matterport Virtual Tours
Give potential new clients a peek into their future home with our Matterport 3D tours. Allowing viewers to wander through the property at their own pace. Our state of the art Matterport Pro 2 camera captures the property in high detail giving a truly immersive experience.

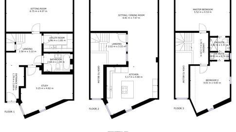
Floorplans
Using our state of the art Matterport 3D scanner, we can create a black and white schematic floorplan of your home in no time at all.
bottom of page